Exhibit 10.16
LEASE AMENDMENT AND EXPANSION AGREEMENT
LEASE AMENDMENT AND EXPANSION AGREEMENT (this “Amendment”) made as of the ___ day of February, 2014, by and between 509 MADISON AVENUE ASSOCIATES, LP, a New York limited partnership, having an address c/o Kensico Management, Inc., 509 Madison Avenue, New York, New York 10022 (“Landlord”), and TONIX PHARMACEUTICALS, INC., a Delaware corporation, having an address at 509 Madison Avenue, Suite 306, New York, New York 10022 (“Tenant”).
WITNESSETH:
WHEREAS, pursuant to that certain Standard Form of Office Lease and Rider thereto, both dated as of September 28, 2010 (collectively, the “Original Lease”, and together with this Amendment, collectively, the “Lease”), between Landlord and Tenant, Landlord did demise and let to Tenant, and Tenant did hire and take from Landlord, certain premises (the “Original Premises”) on the third (3rd) floor (also known as Suite 306) of the building located at and commonly known as 509 Madison Avenue, New York, New York (the “Building”), as more particularly identified in the Original Lease; and
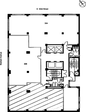
WHEREAS, Tenant desires to lease from Landlord, and Landlord desires to lease to Tenant, certain additional premises on the third (3rd) floor of the of the Building (also known as Suite 310), as more particularly shown on the floor plan attached hereto as Exhibit A (the “Expansion Premises”), upon all of the terms and conditions of the Original Lease, except as amended hereby; and
WHEREAS, Landlord and Tenant desire to extend the term of the Original Lease and to otherwise modify and amend the terms and conditions of the Original Lease in connection therewith as set forth below.
NOW, THEREFORE, in consideration of the mutual covenants herein contained, and other good and valuable consideration, the receipt and sufficiency of which are hereby acknowledged, Landlord and Tenant agree as follows:
1. Defined Terms. All capitalized terms used herein shall have the meaning ascribed to them in the Original Lease, unless specifically set forth herein to the contrary.
2. Extension of Term. The term of the Lease is hereby extended for a five (5) year period (the “Extension Term”) commencing on May 1, 2014 (the “Extension Term Commencement Date”) and expiring on April 30, 2019 (the “Expiration Date”), or on such earlier date upon which said term may expire or be terminated pursuant to any other conditions in the Lease as hereby amended or pursuant to law, upon all of the terms, covenants and conditions contained in the Original Lease, except as otherwise expressly set forth in this Amendment.
3. Lease of Expansion Premises. Effective as of the Extension Term Commencement Date, (i) Landlord hereby leases to Tenant and Tenant hereby hires from Landlord, upon and subject to the terms, covenants, provisions and conditions of the Original Lease and this Amendment, the Expansion Premises, and (ii) all references in the Lease to the “Demised Premises” shall be deemed to mean the Original Premises and the Expansion Premises, collectively, and all of Tenant’s rights and obligations with respect to the Original Premises shall apply to the Expansion Premises, except as expressly modified herein.
4. Extension Term Base Rent and Additional Rent. Effective as of the Extension Term Commencement Date, the Lease shall be amended as follows:
(A) The annual Base Rent (as defined in Article 37 of the Original Lease) for the Demised Premises, payable in equal monthly installments, shall be as follows:
| (i) | $264,833.48 for the period commencing on the Extension Term Commencement Date and ending on April 30, 2015; |
| (ii) | $272,348.64 for the period commencing on May 1, 2015 and ending on April 30, 2016; |
| (iii) | $280,089.26 for the period commencing on May 1, 2016 and ending on April 30, 2017; and |
| (iv) | $288,062.10 for the period commencing on May 1, 2017 and ending on April 30, 2018; and |
| (v) | $296,274.12 for the period commencing on May 1, 2018 and ending on the Expiration Date. |
(B) The term “Tenant’s Percentage” as defined in Article 43(A)(4) of the Original Lease shall mean 3.56%.
(C) The amount for electrical services as set forth in Article 46(2) and (5) of the Original Lease shall be “FOURTEEN THOUSAND THREE HUNDRED TWENTY-EIGHT AND 00/100 ($14,328.00) DOLLARS”; and
(D) The rentable square footage of the demised premises for purposes of Article 46(5)(C)(6) of the Original Lease shall be 4,776.
| 2 |
5. Condition of Expansion Premises; Landlord’s Work. Tenant acknowledges that it has inspected the Expansion Premises and agrees to accept possession thereof in its then "as-is" and broom clean condition on the Extension Term Commencement Date, it being understood and agreed that Landlord shall not be obligated to make any improvements, alterations or repairs to the Expansion Premises, except that Landlord, at its sole cost and expense, agrees to perform, prior to the Extension Term Commencement Date, the work in the Expansion Premises in accordance with the plans attached hereto as Exhibit B (“Landlord’s Work”), all of which shall be of material, manufacture, design, capacity and finish selected by Landlord as standard of the Building. Further, Landlord agrees to commence Landlord’s Work promptly subsequent to the mutual execution and delivery of this Amendment and to perform Landlord’s Work in a good and workmanlike manner in accordance with all applicable laws, rules and regulations.
6. Continued Lease of Original Premises. Tenant hereby acknowledges and agrees that, at all times until the Extension Term Commencement Date, Tenant shall continue to lease the Original Premises upon all of the terms and conditions of the Original Lease.
7. Condition of Original Premises. Tenant hereby represents that it is currently in possession of the Original Premises and that it is fully familiar with the physical condition and state of repair thereof, and Tenant does hereby agree to continue to accept the same in its existing condition and state of repair, subject to any and all defects therein, “as is” as of the date hereof, and that Landlord shall have no obligation to perform any work or make any installation, repair or alteration of any kind to or in respect thereof in connection with Tenant’s continued occupancy of the Original Premises.
8. Security.
(A) As of the Extension Term Commencement Date, Article 34 of the Original Lease shall be amended to provide that the Security Deposit shall be increased to $132,416.74. Prior to the Extension Term Commencement Date, Tenant shall deliver to Landlord a replacement Letter of Credit in the increased Security Deposit amount of $132,416.74 or an amendment to the original Letter of Credit previously deposited by Tenant in the amount of $72,354.24, which conforms to the requirements set forth in Article 69 of the Original Lease. Upon Landlord’s receipt of a replacement Letter of Credit, Landlord shall promptly return to Tenant the original Letter of Credit previously deposited by Tenant.
(B) Notwithstanding anything to the contrary contained in the Lease, provided the Lease is in full force and effect and Tenant is not then in default under the Lease beyond the expiration of any applicable notice and cure periods, Tenant shall have the right to reduce the amount of the Security Deposit to the sum of $88,277.83 (“Reduced Security Amount”) as of the second (2nd) anniversary of the Extension Term Commencement Date (the “Security Reduction Date”). If Tenant is entitled to such reduction on the Security Reduction Date in accordance with this Section 8, then Landlord shall either accept an amendment to the original Letter of Credit to reflect the Reduced Security Amount or simultaneously return the original Letter of Credit to Tenant upon receipt of a replacement Letter of Credit in the Reduced Security Amount, which conforms to the requirements set forth in Article 69 of the Original Lease. Any fees or charges imposed by the Issuing Bank in connection with a reduction in the Letter of Credit in accordance with this Section 8 shall be payable solely by Tenant.
| 3 |
9. Guaranty. As of the Extension Term Commencement Date, provided that Tenant is not then in default under the Lease beyond the expiration of any applicable notice and cure periods, that certain Good Guy Guaranty, dated as of September 28, 2010 (the “Guaranty”), executed by Seth Lederman in favor of Landlord, shall terminate and be of no further force or effect.
10. Broker. Landlord and Tenant each represents and warrants to the other that it has not dealt with any broker, finder or like agent in connection with this Amendment. Landlord and Tenant each does hereby agree to indemnify and hold the other harmless of and from any and all loss, costs, damage or expense (including, without limitation, attorneys’ fees and disbursements) incurred by the other by reason of any claim of or liability to any broker, finder or like agent, who shall claim to have dealt with such party in connection with this Amendment. Landlord acknowledges and agrees that Landlord shall be obligated to pay any commission due and payable to NAI Global of New York City, Inc. (“NAI”) in connection with this Amendment if Landlord previously obligated itself to do so in any brokerage agreement with NAI executed in connection with the Lease. This Section 10 shall survive the expiration or earlier termination of the Lease.
11. Representations and Warranties. Tenant represents and warrants to Landlord that, as of the date hereof, (i) the Lease is in full force and effect and has not been modified except pursuant to this Amendment; (ii) to the best of Tenant’s knowledge, there are no defaults existing under the Lease; (iii) to the best of Tenant’s knowledge, there exist no valid abatements, causes of action, counterclaims, disputes, defenses, offsets, credits, deductions, or claims against the enforcement of any of the terms and conditions of the Lease; (iv) this Amendment has been duly authorized, executed and delivered by Tenant and constitutes the legal, valid and binding obligation of Tenant; and (v) to the best of Tenant’s knowledge, Landlord is not in default of any of its obligations or covenants under the Lease.
12. Miscellaneous.
(A) Except as set forth herein, nothing contained in this Amendment shall be deemed to amend or modify in any respect the terms of the Original Lease. The terms, covenants and conditions of the Original Lease are hereby ratified and confirmed and shall continue to be and remain in full force and effect throughout the remainder of the term hereof, as modified hereby. If there is any inconsistency between the terms of this Amendment and the terms of the Original Lease, the terms of this Amendment shall be controlling and prevail.
(B) This Amendment contains the entire agreement of the parties with respect to its subject matter and all prior negotiations, discussions, representations, agreements and understandings heretofore had among the parties with respect thereto are merged herein. This Amendment may not be modified, amended or terminated nor may any of its provisions be waived except by an agreement in writing signed by the party against whom enforcement of any modification, amendment, termination or waiver is sought.
| 4 |
(C) This Amendment shall not be binding upon Landlord or Tenant unless and until Landlord shall have delivered a fully executed counterpart of this Amendment to Tenant.
(D) This Amendment shall be binding upon and inure to the benefit of Landlord and Tenant and their successors and permitted assigns.
(E) This Amendment shall be governed by the laws of the State of New York without giving effect to conflict of laws principles thereof.
(F) This Amendment may be executed in duplicate counterparts, each of which shall be deemed an original and all of which, when taken together, shall constitute one and the same instrument.
[Signatures on following page]
| 5 |
IN WITNESS WHEREOF, the parties hereto have caused this Amendment to be executed as of the day and year first above written.
| LANDLORD: | ||
| 509 MADISON AVENUE ASSOCIATES, L.P. | ||
| By: | Kensico Management, Inc. | |
| General Partner | ||
| By: | ||
| Alan Zimmerman, Secretary | ||
| TENANT: | ||
| TONIX PHARMACEUTICALS, INC. | ||
| By: | ||
| Name: Seth Lederman | ||
| Title: Chairman | ||
| 6 |
Exhibit A
Expansion Premises
509 Madison Avenue – 3rd Floor

| 7 |
Exhibit B
Landlord’s Work
(See Attached Plan)
| 1. | New coat closet at Location "A." To include shelf and pole. |
| 2. | Remove door and side walls to make connection to the Additional Premises at location "B." |
| 3. | Install slab channeled floor box at location ''C." To include data pull and electric. |
| 4. | New door, wall and glass panel at location "D." |
| 5. | Remove current demising wall at location "E" to make connection to the Additional Premises. |
| 6. | New pantry at location "F." To be similar in content and finishes to existing pantry. |
| 7. | Remove wall at location ''G." |
| 8. | Patch carpet and paint at affected areas. |
| 9. | All dimensions and locations are approximate. |
| 8 |

| 9 |