Tonix Pharmaceuticals Holding Corp. 10-K
Exhibit 10.17
SECOND AMENDMENT OF LEASE AND ASSIGNMENT OF LEASE
SECOND AMENDMENT OF LEASE AND ASSIGNMENT OF LEASE (this “Amendment”) made as of the 6 day of December, 2018 (the “Effective Date”), by and between 509 MADISON AVENUE ASSOCIATES, LP, a New York limited partnership, having an office c/o Kensico Management, Inc., 509 Madison Avenue, New York, New York 10022 (“Landlord”), TONIX PHARMACEUTICALS, INC., a Delaware corporation having an office at 509 Madison Avenue, Suite 306, New York, New York 10022 (“Assignor”), and TONIX PHARMACEUTICALS HOLDINGS CORP., a Nevada corporation having an office at 509 Madison Avenue, Suite 306, New York, New York 10022 (“Tenant”).
W I T N E S S E T H:
WHEREAS, by Agreement of Lease dated (the “Original Lease”) as of September 28, 2010, Landlord did demise and let unto Tenant and Tenant did hire and take space on the third floor (also known as Suite 306) as more particularly identified in the Original Lease in the building known by the street address 509 Madison Avenue, New York, New York (the “Building”);
WHEREAS, Landlord and Tenant entered into that certain Lease Amendment and Expansion Agreement dated as of February 11, 2014 (the “First Amendment”) pursuant to which Tenant also hired and took space on the third floor (known as Suite 310) (Suite 306 and Suite 310 shall collectively be referred to herein as “(the “Original Demised Premises”);
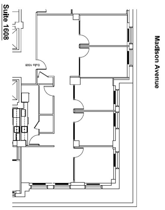
WHEREAS, Landlord and Tenant desires to modify the Original Lease to (i) extend the term of the Original Lease, (ii) substitute for the Original Demised Premises other space in the Building located on the sixteenth (16th) floor, being more particularly shown on Exhibit A annexed hereto (and also known as Suite 1608) (the “New Demised Premises”), and (iii) surrender to Landlord the Original Demised Premises and to modify the Original Lease in connection therewith, all as hereinafter set forth (the Original Lease, as modified by the First Amendment and this Amendment, the “Lease”).
NOW, THEREFORE, in consideration of the mutual covenants herein contained, and other good and valuable consideration, the receipt and sufficiency of which are hereby acknowledged, Landlord and Tenant agree as follows:
1.
Lease of New Demised Premises. Commencing on the later to occur of (i) January 15, 2019 or (ii) the day after Landlord delivers written notice to Tenant of the substantial completion of Landlord’s Work (as defined in Section 3(B) hereof) (the “Extended Term Commencement Date”), Landlord hereby leases to Tenant and Tenant hereby leases from Landlord the New Demised Premises upon all of the terms and conditions of the Original Lease, except as follows:
(A)
The term of the Lease is extended through and including the last day of the twenty second (22nd) full month following the Extended Term Commencement Date, or on such earlier date upon which said term may be terminated pursuant to any other conditions in the Lease or pursuant to law, upon all of the terms, covenants and conditions contained in the Lease, except as otherwise expressly set forth in this Amendment (the “Extended Term Expiration Date”);
(B)
The “demised premises” shall mean the New Demised Premises; provided, however, that from the Extended Term Commencement Date until the Surrender Date (as defined in Section 4 hereof), the demised premises shall be deemed to include both the Original Demised Premises and the New Demised Premises, subject to the terms herein;
(C)
The annual Base Rent for the New Demised Premises, payable in equal monthly installments (including the Electrical Inclusion Factor), shall be as follows:
| a. | $195,363.00 per annum for the period commencing on the Extended Term Commencement Date and ending on the day immediately preceding the first anniversary of the Extended Term Commencement Date; |
| b. | $200,944.80 per annum for the period commencing on the first anniversary of the Extended Term Commencement Date and ending on the Extended Term Expiration Date. |
(D)
“Base Tax Year” as defined in Article 43(A)(2) of the Original Lease shall mean the real estate taxes payable with respect to the Building for the New York City fiscal year beginning on July 1, 2018 and ending on June 30, 2019;
(E)
“Tenant’s Percentage” as defined in Article 43(A)(4) of the Original lease (as amended by Section 4(B) of the First Amendment) shall mean 1.84%;
(F)
The “Electrical Inclusion Factor” as defined in Article 46(2) and (5) of the Original Lease (as amended by Section 4(C) of the First Amendment) shall be “NINE THOUSAND THREE HUNDRED AND THREE DOLLARS AND 00/100 ($9,303.00)”; and
(G)
The rentable square footage for the New Demised Premises for purposes of Article 46(C)(6) only (as amended by Section 4(D) of the First Amendment) shall be 2,658 square feet.
2.
Original Demised Premises. Landlord and Tenant hereby acknowledge and agree that Tenant shall continue leasing the Original Demised Premises until the Surrender Date (as defined in Section 4 hereof) (the “Original Demised Premises Term”). During the Original Demised Premises Term, and subject to Section 4(B) hereof, Tenant shall lease the Original Demised Premises upon all of the terms and conditions of the Original Lease, as modified by this Amendment, including, without limitation, the continued payment of Base Rent and additional rent with respect to the Original Demised Premises.
3.
Condition of New Demised Premises. (A) Tenant covenants and agrees that it shall accept the New Demised Premises in its condition “AS IS” as of the Effective Date, subject to any and all defects therein but subject to Landlord’s repair and maintenance obligations as explicitly set forth in the Lease, and that Landlord shall have no obligation to do any work or make any installation, repair or alteration of any kind to or in respect of the New Demised Premises other than using Building standard materials to perform the work described on Exhibit B annexed hereto (“Landlord’s Work”).
(B) For purposes of this Section 3, “substantial completion” of Landlord’s Work shall mean Landlord’s Work then remaining to be done, if any, shall have reached that stage of completion such that Tenant could use and occupy the New Demised Premises and operate its business therein without substantial interference by reason of those items still required to be done to complete Landlord’s Work. In any event, Tenant will at all times cooperate with Landlord so as not to impede Landlord’s ability to complete Landlord’s Work as expeditiously as possible. Additionally, Tenant understands and confirms that Landlord’s Work shall be deemed substantially completed even though certain details, adjustments or other matters which do not materially impede Tenant’s access to the New Demised Premises and use thereof for the conduct of Tenant’s business remain to be completed (collectively, “Punch List Items”). Landlord shall complete all Punch List Items within thirty (30) days of substantial completion of Landlord’s Work. In the event that any requests for changes and/or additions in Landlord’s Work are made by Tenant and approved by Landlord, and such requests extend the estimated time for substantial completion of Landlord’s Work, such estimate to be reasonably determined by Landlord or Landlord’s contractors or subcontractors hired to perform said required work, then, for the purposes hereof, Landlord’s Work shall be deemed to have been substantially completed except for the delay caused by or in any manner related to the requests of Tenant made as aforesaid. Nothing in the preceding sentence shall be construed as requiring Landlord to grant, approve or comply with any such requests for changes and/or additions.
(C)
Landlord shall cause substantial completion of Landlord’s Work to occur by no later than January 30, 2019 (the “Intended Completion Date”) which date shall be further delayed on a day-for-day basis for each day of any Tenant Delay (as hereinafter defined) or delays caused by force majeure or other events beyond Landlord’s reasonable control. If for any reason substantial completion does not occur by the Intended Completion Date, then Base Rent with respect to the Original Demised Premises shall be abated during the period commencing on the Intended Completion Date and ending on the date upon which Landlord causes substantial completion to occur. A “Tenant Delay” will be deemed to have occurred if the completion of Landlord’s Work is delayed due to any act or omission by Tenant (or Tenant’s agents, servants, employees, subtenants, contractors, invitees, licensees and all other persons invited by Tenant into the New Demised Premises as guests or doing lawful business with Tenant), including, but not limited to, delays due to changes in or additions to Landlord’s Work requested by Tenant, delays in submission of information or estimates, delays in giving authorizations or approvals, or delays due to the postponement of any work at the request of Tenant.
4.
Surrender of Original Demised Premises.
(A)
On the later to occur of (i) the Extended Term Commencement Date, and (ii) the date upon which Tenant shall remove all of Tenant's movable personal property and movable trade fixtures from the Original Demised Premises and vacate same and deliver vacant possession thereof to Landlord (such date, as applicable, the “Surrender Date”), Tenant shall surrender possession of the Original Demised Premises to Landlord and Tenant shall give, grant and surrender all of its right, title and interest to the Original Demised Premises to Landlord. Tenant covenants and agrees on behalf of itself, its successors and assigns, that it has not done or suffered (and will not do or suffer) anything whereby the Original Demised Space has (or will) become encumbered in any way whatsoever. Through and including the Surrender Date, Tenant shall continue to pay Landlord any and all payments, sums or charges due or to become due relating to the Original Demised Premises pursuant to the terms of the Original Lease. On or before the Surrender Date, Tenant shall deliver the Original Demised Premises to Landlord broom clean, in good order and condition, except wear and tear, and otherwise in the condition required under the Lease. Tenant shall deliver the Original Demised Premises to Landlord broom clean, in good order and condition Effective as of the Surrender Date (and provided Tenant delivers possession of the Original Demised Premises to Landlord in the condition required by the Original Lease), (i) all references to the “demised premises” in the Original Lease shall mean the New Demised Premises and (ii) Tenant shall have no further obligation to Landlord under the Original Lease (or any amendment thereto) with respect to the Original Demised Premises except with respect to obligations that survive the termination of the Lease.
(B)
If Tenant shall fail to surrender possession of the Original Demised Premises to Landlord by the date which is thirty (30) days after the Extended Term Commencement Date, then Tenant shall be deemed to be a holdover in respect thereof and shall be subject to all of Landlord's rights and remedies set forth in the Original Lease and this Amendment by reason of such holdover. Notwithstanding anything to the contrary contained herein, in the event of a holdover hereunder, Tenant shall be required to pay Landlord holdover rent for the Original Demised Premises as required under Article 52 of the Original Lease for each month (or portion thereof) during which Tenant holds over in the Original Demised Premises after the Outside Surrender Date, in addition to any Base Rent and additional rent for the New Demised Premises required hereunder.
5.
Broker. Landlord and Tenant each represent and warrant that it has dealt with no broker in connection with this Agreement other than Circle Group Realty LLC (the “Broker”) each agree to indemnify and hold the other party harmless from any and all loss, costs, damage or expense (including, without limitation, reasonable attorneys’ fees and disbursements) incurred by the other party by reason of any claim or liability to any broker, finder or like agent other than Broker, who shall claim to have dealt with the indemnifying party in connection with this Agreement. This Section shall survive the expiration or earlier termination of the Lease and this Amendment.
6.
Assignment and Assumption of Lease.
(A)
Assignor hereby
assigns, sells, and transfers to and for the exclusive benefit of Tenant, all right, title, interest, claim and demand of Assignor
in and to the Lease, including, without limitation, the security deposit. Tenant hereby accepts the foregoing assignment and assumes
and agrees to pay, perform, discharge and otherwise be and remain responsible for all covenants, obligations, and liabilities of
Assignor as tenant under the Lease.
(B)
Landlord hereby grants its consent (the “Consent”) to the assignment by Assignor to Assignee, subject to the following terms and conditions:
i.
Nothing herein contained shall be construed to modify, waive, impair or affect any of the provisions, covenants, agreements, terms or conditions in the Lease, or to waive any breach thereof, or any right of Landlord against any person, firm, association or corporation liable or responsible for the performance thereof, or to enlarge or increase Landlord’s obligations under the Lease, and all provisions, covenants, agreements, terms and conditions of the Lease are hereby mutually declared to be in full force and effect.
ii.
This Consent shall not be assignable and shall not be construed as a consent by Landlord to, or as permitting, any other assignment of the Lease without Landlord’s prior written consent.
iii.
Tenant and Assignee covenant and agree to indemnify and hold Landlord harmless against any and all claims (including, without limitation, reasonable attorneys’ fees and disbursements) for brokerage commissions in connection with the Assignment and/or this Consent.
iv.
Assignee shall not use or permit the use of the demised premises or any part thereof in any way which might or would violate any of the provisions, covenants, agreements, terms and conditions of the Lease, or for any unlawful purposes or in any unlawful manner and Assignee shall not suffer or permit anything to be done therein or suffer or permit anything to be brought into or kept in the premises which, in the judgment of Landlord, might or shall in any way reasonably impair or tend to impair the character, appearance or reputation of the Building, impair or interfere with or tend to impair or interfere with any of the Building services or the proper and economic heating, cleaning, air conditioning or other servicing of the Building or the demised premises or impair or interfere with or tend to impair or interfere with the use of any of the other areas of the Building by, or occasion discomfort, inconvenience or annoyance to, any of the other tenants of the Building. Assignee shall not install or permit to be installed in the demised premises or any part thereof any electrical or other similar or dissimilar equipment of any kind which, in the judgment of Landlord, might cause any such impairment, interference, discomfort, inconvenience or annoyance.
v.
Assignor shall be and remain liable and responsible for the due keeping, performance and observance of all the provisions, covenants, agreements, terms and conditions set forth in the Lease on the part of the tenant under the Lease to be kept, performed and observed and for the payment of the rent, additional rent and all other sums now and/or hereafter becoming payable thereunder, expressly including as such (but not limited to) additional rent, adjustments of rent, and any and all charges for any property, material, labor, utility or other similar or dissimilar services rendered or supplied or furnished by Landlord in, or in connection with, the demised premises under the Lease.
7.
Miscellaneous.
(A)
As modified and amended by this Agreement, all of the terms, covenants and conditions of the Lease are hereby ratified and confirmed and shall continue to be and remain in full force and effect throughout the remainder of the term thereof.
(B)
Unless otherwise set forth herein, capitalized terms shall have the meanings set forth in the Lease.
(C)
This Amendment may be executed in one or more counterparts, each of which shall be deemed an original, but all of which when taken together shall constitute one and the same instrument.
[Signature Page Follows]
IN WITNESS WHEREOF, the parties hereto have caused this Amendment to be executed as of the day and year first above written.
| LANDLORD: | ||
| 509 MADISON AVENUE ASSOCIATES, LP | ||
| By: | /s/ Marilyn Cafone | |
| Name: Marilyn Cafone | ||
| Title: Corporate Controller | ||
| ASSIGNOR: | ||
| TONIX PHARMACEUTICALS, INC. | ||
| By: | /s/ Seth Lederman | |
| Name: Seth Lederman | ||
| Title: CEO | ||
| TENANT: | ||
| TONIX PHARMACEUTICALS HOLDINGS CORP. | ||
| By: | /s/ Jessica Morris | |
| Name: Jessica Morris | ||
| Title: COO | ||
EXHIBIT A
New Demised Premises

EXHIBIT B
Landlord’s Work
Suite 1608
| 1. | Install Floor Power and Data Outlet in location to be specified by Tenant. Power outlet to be 115V/15A separate branch circuit. Data cabling excluded. |
| 2. | Paint entire office, except office fronts and doors, Chantilly Lace (off white). |
| 3. | Carpet entire area with building standard nylon, 20 oz. broadloom carpet. Carpet to be double adhesive installation with rubber cushion. Carpet choice made by Tenant from building standard selection. |
| 4. | Replace wooden entry door. |